家を建てるときの法律
建ぺい率と容積率
建ぺい率とは、敷地面積に対する建物の建築面積の割合のことです。建築面積とはその建物の水平投影面積のことで、2階部分が1階部分よりも出っ張っていればその部分も建築面積に加算されます。また、壁がなくても柱と屋根があれば建築面積に加算されたり、軒の出1mを越える部分は建築面積に加算されたりと、細かな規制があります。たとえば、敷地の面積が100㎡で、建築面積が60㎡の時には60÷100×100=60で、建ぺい率は60%となります。
つまり敷地の6割が建物であり、残りの4割は空地ということです。その数値が用途地域の規制建ぺい率に収まっていれば良いのです。また、この建ぺい率制限は主として火災時の延焼防止の見地から定められていますので、延焼の可能性の少ない角地(特定行政庁の指定する角地)や耐火建築物の並ぶ防火地域内に耐火建築物を建てる場合などには、建ぺい率の緩和があります。
次に、容積率とは敷地面積に対する建物の延べ床面積の割合のことです。延べ床面積とはその建物の各階の床面積の合計値です。1階の床面積が30㎡で、2階の床面積が30㎡のとき、延べ床面積は60㎡となり、容積率は60÷100×100=60%となります。建ぺい率と同様にその数値が用途地域の規制容積率に収まっていれば良いのです。ただし容積率は前面道路の幅によっても規制されます(道路容積率)〔建築基準法52条〕。
閑静な住宅地ほどこの建ぺい率や容積率の数値が小さく、建てられる建物の規模も小さくなり、その分良好な住環境となります。一方、駅の周辺など商業系地域では建ぺい率、容積率などの数値も大きく、敷地いっぱいに高層ビルなどが建てられるようになり、敷地の有効利用度が増し、利便な地域となるのです。
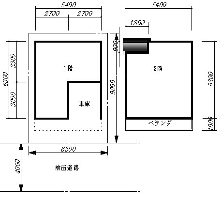
下図を例に、建築面積と延べ床面積の計算をします。
この敷地は、第二種中高層住居専用地域で、建ぺい率/容積率の限度が60%/200%の地域と仮定します。尚、ここでは面積計算のみの説明とし、他法規は無視します。

建築面積の計算
敷地面積 6.5m×9m=58.5m2 建築面積限度 58.5m2×0.6(60%)=35.1m2
建築面積は、上から見た水平投影面積なので 建築面積:5.4m×6.3m=34.02m2
34.02m2(建築面積)≦35.1m2(建築面積限度) なのでOK
※通り芯から、出が1m以内のベランダは、建築面積不算入となります。(仮に、この図のベランダの出が1.3mだとしたら、0.3m×5.4m=1.62m2を34.02m2に加える事になり、
合計 35.64m2 で建ぺい率オ-バ-になります。
延べ床面積の計算
容積率は200%に定められていますが、前面道路が4mなので
道路幅員4m×0.4(住居系地域係数)=1.6 で容積限度160%で計算します。
延べ床面積限度 58.5m2(敷地面積)×1.6=93.6m2 になります
・1階床面積
ここで、住宅に附属している自動車車庫は、特例で、全体の延べ面積の1/5 を限度として面積に不算入の取り扱いが出来るので、1階床面積は、車庫を除 いた部分について算出します。(地下室も面積不算入の特例あり)5.4m×6.3m-2.7m×3m=25.92m2(1階床面積)
・2階床面積(バルコニ-面積不算入(幅2m以下))
5.4m×6.3m-1.8m×0.9m=32.4m2(2階床面積)
・延べ床面積
25.92m2+32.4m2=58.32m2
58.32m2(延べ床面積)≦93.6m2(容積限度) なのでOK以上のように、建築面積と延べ床面積を計算します。このように建ぺい率/容積率が60/200の地域では建ぺい率がほぼ限度いっぱいなのに対し、2階建てではたいがい容積が余ります。他法規などの条件を満たせば、3階建ても可能です。
道路
土地があっても道路がなければ家は建ちません。原則として4m以上の道路に、土地が2m以上接していなければなりません。(接道義務)〔建築基準法43条〕
よく、不動産屋さんの広告で、古屋付の格安の土地が売りに出されていますが、そのほとんどがこの法律のため建替えのできない物件です。
また、1本の2m幅員の通路を何軒かで使用している場合も同様に、建替えは困難です。ひとつの土地にそれぞれ2mの専用通路が必要になります。
破格の土地を買ったがよいが建替えができない!などと泣きを見ないよう注意しましょう。ただし、購入の際には不動産屋さんのほうでも"建替えはできませんよ"という説明をする義務があります(重要事項説明の義務)
用途の制限
まず、都市計画法という法律で家を建てられる地域(市街化地域)と、家を建てることを抑制する地域(市街化調整地域)とに大別されます。調整地域では一般に農家以外は新築ができません。市街化地域では、住居系地域と、商業系地域と、工業系地域とに大別されます。それぞれ細分化されており、住居系地域では、第1種低層住居専用地域・第2種低層住居専用地域・第1種中高層住居専用地域・第2種中高層住居専用地域・第1種住居地域・第2種住居地域・準住居地域に分けられ、商業系地域では、近隣商業地域・商業地域に、工業系地域では、準工業地域・工業地域・工業専用地域に分けられています。(用途地域)
住居系地域では倉庫や、劇場、映画館、パチンコ店などは建てられませんし、工業専用地域では住宅や、学校などが建てられないよう制限されています(建築基準法48条)
またそれぞれの用途地域ごとに建てられる建物の規模も規制されています(建ぺい率、容積率)
家を建てるとなればまず第一に、自分の土地がどの用途地域に属しているか知る必要があります。
高さの制限
閑静な住宅地ほど展望や日照権の関係で高い建物は建てられません。また一方、積極的に都市化したい地域では逆に土地利用度の低い低層な建物は建てられないように制限されています。まず最高高さの制限については基本的に次の4つがあります。〔建築基準法55条・56条〕
①絶対高さの制限:第1種低層住居専用地域、第2種住居専用地域のみに定められている制限で、建物の最高高さを10m又は12mまでと決めています。これにより必然的に、4階建て以上の建物は建てることはできません。
②道路斜線制限:前面道路の幅による建物の高さ制限で道路の幅が狭いほど建物の高さも低く抑えられます。この規制は全ての用途地域に適用されます。
③隣地斜線:隣地の採光・通風のために境界線より一定の割合で制限されています。低層建物の場合には規制となりません
④北側斜線:南隣の日照の確保のために設けられた規制で低層・中高層住居専用地域のみに適用される規制です。
そのほか地方自治体においてより厳しい、制限を設けているところもあります。一方、最低高さの規制については各自治体において規制のある地域と規制のない地域があります。横浜市の場合は横浜駅や新横浜駅、みなとみらいの中央地区などは建物の最低高さを14m、又は12m以上と定めています。
防火制限
先ほどの用途地域とは、地域ごとに建てられる建物の種類を制限をしたものですが、その他に、地域ごとに建物の構造を抑制する分け方があります。
まず、駅などの近くや繁華街では火災時の延焼防止のために燃えにくい建物(耐火建築物)しか建てられないように制限します(防火地域)、そして、その近隣や幹線道路沿いでは一定規模の建物を耐火建築物にするか、準耐火建築物にするように制限されています(準防火地域)、一方、延焼の恐れの少ない地域では木造住宅でも建てられる防火指定なしという地域になります。
このようにお住まいの地域によって建てられる住宅の大きさ、高さ、構造が制限されています。住い造りの第一ステップはご自分の土地にどの程度の建物が建てられるか把握することです。
専門家による具体的な設計をご希望の方は設計依頼フォームからお申し込みください。
(建物の規模は2階建てまでです)
他コンテンツ

ためになる建築用語
建築用語には犬だの、猫だの、馬だの、はてまた水やら、芋やら、ラーメンなど建築用語とは思えないような言葉もいろいろ出てきます。ここでは…

住まいのお手入れ
基礎の途中にある風窓は家の床下の通風を確保するための大事な場所です。通風の妨げになるようなものは置かずにきれいにしておいて...
